Универсальное помещение
Мечта СНТ (Электросталь городской округ), 1 Показать на карте
Мечта СНТ (Электросталь городской округ), 1 Показать на карте
Мечта СНТ (Электросталь городской округ)
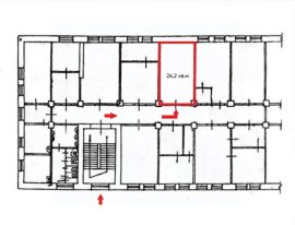
Аренда в торговом центре от 21 и 60 м² Адрес: г Электросталь, ул. Корешкова, д 1 От собственника. Без комиссии.ТЕХНИЧЕСКИЕ ХАРАКТЕРИСТИКИ площадь 60 м² мощность 450кВт вход отдельный погрузка/разгрузка через главный вход отопление центральное зальная планировка рядом с ж/д вокзалом вентиляция естественная кондиционер вода холодная, горячая/бойлер пешеходный трафик автомобильный трафик план помещения по запросуО НАСКонсультанты Агентство Регионального Развития Электросталь помогут согласовать все условия по помещению без комиссии и с выгодой для всех сторон. Мы специализируемся на качественном подборе помещений для бизнеса. Напишите нам в чат или позвоните и мы организуем просмотр всех помещений которые вас заинтересуют, чтобы вы смогли посмотреть все подходящие для вас варианты потратив на это не более 2х часов. ОТ СОБСТВЕННИКА И БЕЗ КОМИССИИ
60 м2
- Показать контакты
- Добавить в избранное
60 м2
90 000 /мес.
1 500 /м2
