Если цена в объявлении изменится, мы сразу сообщим вам об этом на электронную почту.
Нажимая «Подписаться», вы соглашаетесь с правилами.
продам коттедж, 20-4 кв-л531 662 080 ₽
25 июня 2024
Дата публикации объявления
Обн. 18 июля 2025
Дата обновления объявления
11
Количество просмотров (+ просмотры за сегодня)
Топ
611 106 ₽/м²
Чистая продажа
Термин "Чистая продажа" означает, что в квартире никто не прописан или
есть куда выписаться и вывезти вещи. Это лучший вариант для покупателя.
Вероятность срыва сделки минимальна.
Этажей3
Площадь участка29 соток
Общая площадь870 м2
Материал домакирпич
ЭлектричествоЕсть
Газоснабжениецентральное
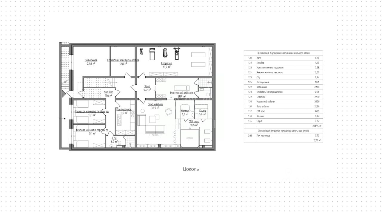
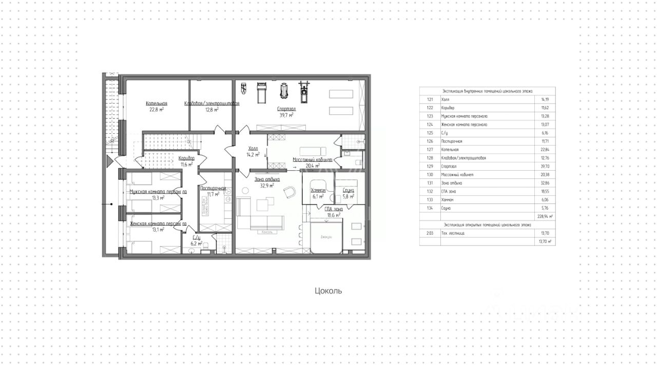
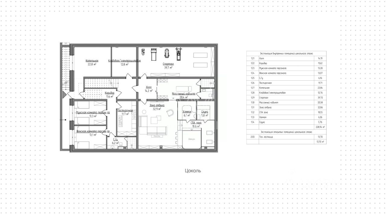
ID 10 796. Горки-2 СТ. Резиденция площадью 870 м² построена на полевом участке почти 29 соток с ландшафтным дизайном. Фасад в современном стиле из кирпича облицован гранитом светлого и темного цветов с вставками из дерева. В доме с отделкой спланировали 4 спальни, просторную гостиную с камином и вторым светом, кухню-столовую, кабинет, спортзал и SPA-зону с хаммамом, сауной и джакузи. На крытой террасе с видом на участок можно обустроить зону барбекю. Предусмотрены блок для персонала с 2-мя спальнями и гараж на 2 машины.
Поэтажное описание Цоколь: холл, 2 комнаты персонала, санузел, постирочная, котельная, кладовая/электрощитовая, спортзал, массажный кабинет, зона отдыха, SPA-зона, хаммам, сауна.
ID 10 796. Горки-2 СТ. Резиденция площадью 870 м² построена на полевом участке почти 29 соток с ландшафтным дизайном. Фасад в современном стиле из кирпича облицован гранитом светлого и темного цветов с вставками из дерева. В доме с отделкой спланировали 4 спальни, просторную гостиную с камином и вторым светом, кухню-столовую, кабинет, спортзал и SPA-зону с хаммамом, сауной и джакузи. На крытой террасе с видом на участок можно обустроить зону барбекю. Предусмотрены блок для персонала с 2-мя спальнями и гараж на 2 машины.
Поэтажное описание Цоколь: холл, 2 комнаты персонала, санузел, постирочная, котельная, кладовая/электрощитовая, спортзал, массажный кабинет, зона отдыха, SPA-зона, хаммам, сауна.